株式会社 ミライズ不動産

八戸市/青森市/三沢市/十和田市/おいらせ町/階上町/三戸郡/etc
青森県の不動産探しはミライズ不動産にお任せください

営業時間 / 9:00~17:30 
定休日 / 水曜・木曜・祝日 ℡.0120-933-172

House for sale売買建物 物件一覧

売買建物

更新日:2026年01月23日

\年内入居可能物件。みんなで集まれるLDK30帖!お庭が欲しい、BBQが好きな方はお気軽にご見学ください♪/

価格
1,469万円
間取
3LDK

三戸郡五戸町字正場沢

掲載内容と現況が異なる場合には
現況優先とさせて頂きます
問合せNo 3317
取引種目 売買建物 取引態様 仲介
価格 1,469万円 間取り 3LDK
所在地 三戸郡五戸町字正場沢
交通 五戸総合病院前バス停まで徒歩1分です
土地面積 244.51㎡(約74坪) 他、私道面積 無し
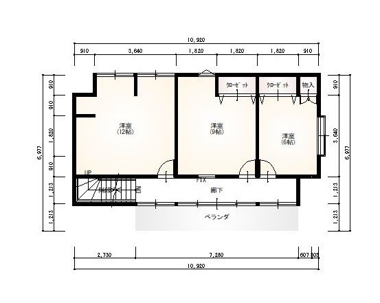
建物構造 木造2階建 建物面積 135.82㎡(約41坪)
間取内訳 1階 30.4帖LDK 2階 12帖洋室 9帖洋室 6帖洋室
接道状況 北側 幅員:約6m 接道:約11m
築年月日 昭和50年6月築 現況 空家
引渡し時期 即時 駐車場 2台
土地権利 所有権 地目 宅地
都市計画 未線引 用途地域 第一種住居地域
建ペイ率(%) 60 容積率(%) 200
ガス プロパンガス トイレ 公営下水
学区(小) 五戸町立五戸小学校 学区(中) 五戸町立五戸中学校
備考 ※是非一度ご内見してみて下さい!(外観写真は一部加工しています)
~リフォーム内容~
◆水廻り4点交換(SK、UB、洗面台、トイレ水洗化)
◆フローリング、部屋の壁仕切り、床張替(断熱材入含む)、クロス張替、照明交換、外壁、屋根塗装、玄関引戸交換、駐車場整備(土留・アスファルト舗装)、外階段手摺、玄関前フェンス
~おススメポイント~
〇広々リビング♪ 〇2階に3部屋♪ 〇開放的なベランダ♪〇年内入居可能
~周辺環境~
〇五戸総合病院まで徒歩1分(約38m)
〇ローソン五戸店まで徒歩3分(約217m)
〇五戸小/五戸中エリア
■ミライズ不動産はタナカグループホールディングスの一員です。グループ会社のタナカホーム、フジケンザイと共に安心して暮らせるお家探しをお手伝い致します!

一覧に戻る

青森県内の不動産探しは
ミライズ不動産にお任せください

TEL.0120-933-172

営業時間 / 9:00~17:30 
定休日 / 水曜・木曜・祝日

メールでの
お問い合わせはこちら