株式会社 ミライズ不動産

八戸市/青森市/三沢市/十和田市/おいらせ町/階上町/三戸郡/etc
青森県の不動産探しはミライズ不動産にお任せください

営業時間 / 9:00~17:30 
定休日 / 水曜・木曜・祝日 ℡.0120-933-172

House for sale売買建物 物件一覧

売買建物

更新日:2026年01月23日

\河原木字小田上の中古住宅/小学校まで徒歩約6分と通学に便利♪リフォームのご相談も承ります♪♪

価格
500万円
間取
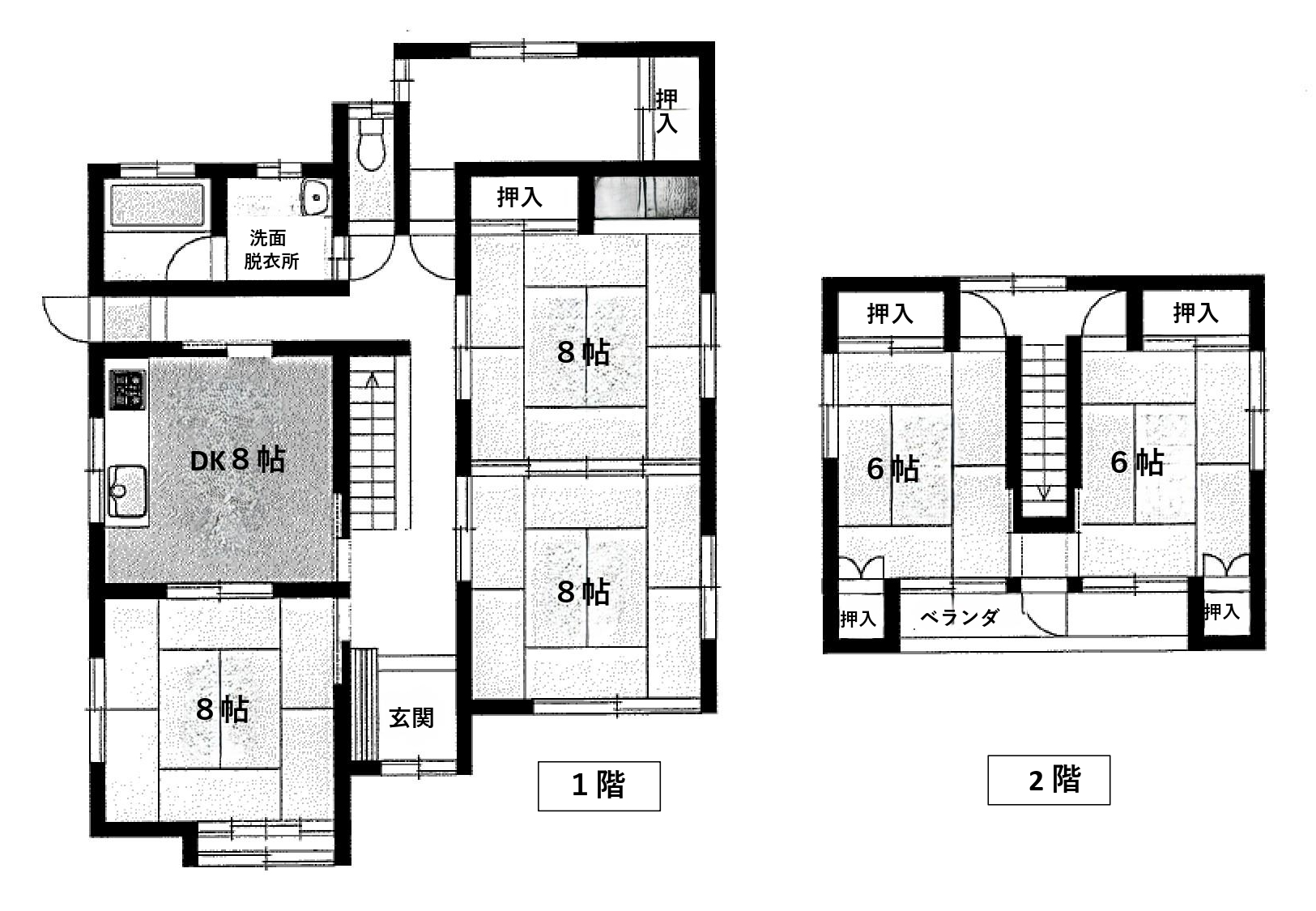
5DK

八戸市大字河原木字小田上

掲載内容と現況が異なる場合には
現況優先とさせて頂きます
問合せNo 7003
取引種目 売買建物 取引態様 仲介
価格 500万円 間取り 5DK
所在地 八戸市大字河原木字小田上
交通 市営バス「八戸基地」バス停から徒歩5分
土地面積 247.74㎡/74.94 他、私道面積
建物構造 木造2階建 建物面積 113.44㎡/34.31
間取内訳 1F:DK8帖、和室8帖×3 2F:和室6帖×2
接道状況
築年月日 1978年(昭和53年)5月 現況 売出中
引渡し時期 相談 駐車場 2台
土地権利 所有権 地目 宅地
都市計画 市街化区域 用途地域 第一種住居地域
建ペイ率(%) 60 容積率(%) 200
ガス プロパンガス トイレ 汲取り
学区(小) 八戸市立高館小学校 学区(中) 八戸市立下長中学校
備考 ※現況渡し
※計2筆
~おススメポイント~
〇小学校への通学に便利♪ 〇和室が充実♪ 〇全室6帖以上♪
~周辺環境~
〇マエダストア日計店まで車で3分(約1160m)
〇ローソン河原木高館店まで徒歩13分(約1030m)
〇高館小/下長中エリア
※物件の詳細を知りたい方はお気軽にお問合せください♪
■ミライズ不動産はタナカグループホールディングスの一員です。グループ会社のタナカホーム、フジケンザイと共に安心して暮らせるお家探しをお手伝い致します!

一覧に戻る

青森県内の不動産探しは
ミライズ不動産にお任せください

TEL.0120-933-172

営業時間 / 9:00~17:30 
定休日 / 水曜・木曜・祝日

メールでの
お問い合わせはこちら