株式会社 ミライズ不動産

八戸市/青森市/三沢市/十和田市/おいらせ町/階上町/三戸郡/etc
青森県の不動産探しはミライズ不動産にお任せください

営業時間 / 9:00~17:30 
定休日 / 水曜・木曜・祝日 ℡.0120-933-172

House for sale売買建物 物件一覧

売買建物

更新日:2026年03月30日

\沼館一丁目 新築分譲住宅(B1)/即入居可能!大型ショッピングセンターまで歩いて行ける生活環境♪

価格
2,580万円
間取
4LDK

八戸市沼館一丁目12-3(B1)

掲載内容と現況が異なる場合には
現況優先とさせて頂きます
問合せNo 9013
取引種目 売買建物 取引態様 仲介
価格 2,580万円 間取り 4LDK
所在地 八戸市沼館一丁目12-3(B1)
交通 八戸市営バス「ピアドゥ前」バス停まで徒歩3分、JR八戸線「本八戸」駅まで徒歩18分
土地面積 138.13㎡(41.78坪) 他、私道面積
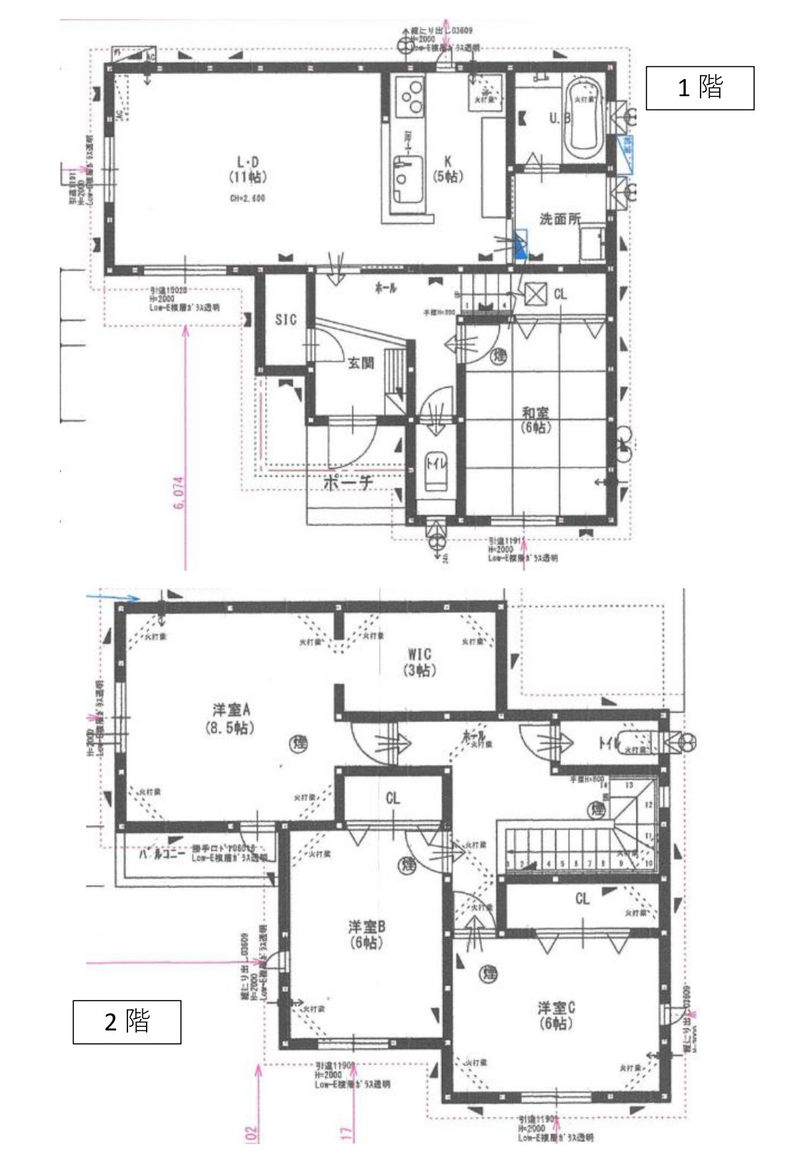
建物構造 木造2階建て 建物面積 110.96㎡(33.56坪)
間取内訳 1階:LDK16帖、和室6帖  2階:洋室8.5帖、洋室6帖、洋室6帖
接道状況 西側: 幅員4m 公道に接道
築年月日 令和8年(2026年)1月 現況 売出中
引渡し時期 即時 駐車場 2台
土地権利 所有権 地目 宅地
都市計画 市街化区域 用途地域 工業地域
建ペイ率(%) 60 容積率(%) 200
ガス プロパンガス トイレ 洋式水洗(公共下水)
学区(小) 八戸市立城下小学校 学区(中) 八戸市立第二中学校
備考 ~おススメポイント~
〇ショッピングセンター徒歩圏内♪ 〇食器洗い乾燥機付きシステムキッチン♪ 〇水道加入金の負担なし♪
~周辺環境~
〇ピアドゥ八戸沼館まで徒歩4分(約250m)
〇ショッピングセンターラピアまで徒歩13分(約995m)
〇城下小(約785m)第二中学校(約2300m)
※物件の詳細を知りたい方はお気軽にお問合せください♪
■ミライズ不動産はタナカグループホールディングスの一員です。グループ会社のタナカホーム、フジケンザイと共に安心して暮らせるお家探しをお手伝い致します!

一覧に戻る

青森県内の不動産探しは
ミライズ不動産にお任せください

TEL.0120-933-172

営業時間 / 9:00~17:30 
定休日 / 水曜・木曜・祝日

メールでの
お問い合わせはこちら