株式会社 ミライズ不動産

八戸市/青森市/三沢市/十和田市/おいらせ町/階上町/三戸郡/etc
青森県の不動産探しはミライズ不動産にお任せください

営業時間 / 9:00~17:30 
定休日 / 水曜・木曜・祝日 ℡.0120-933-172

House for sale売買建物 物件一覧

売買建物

更新日:2026年01月23日

\2015年築の太陽光蓄電池・サンルーム!/あったらいいながある物件♪

価格
2,300万円
間取
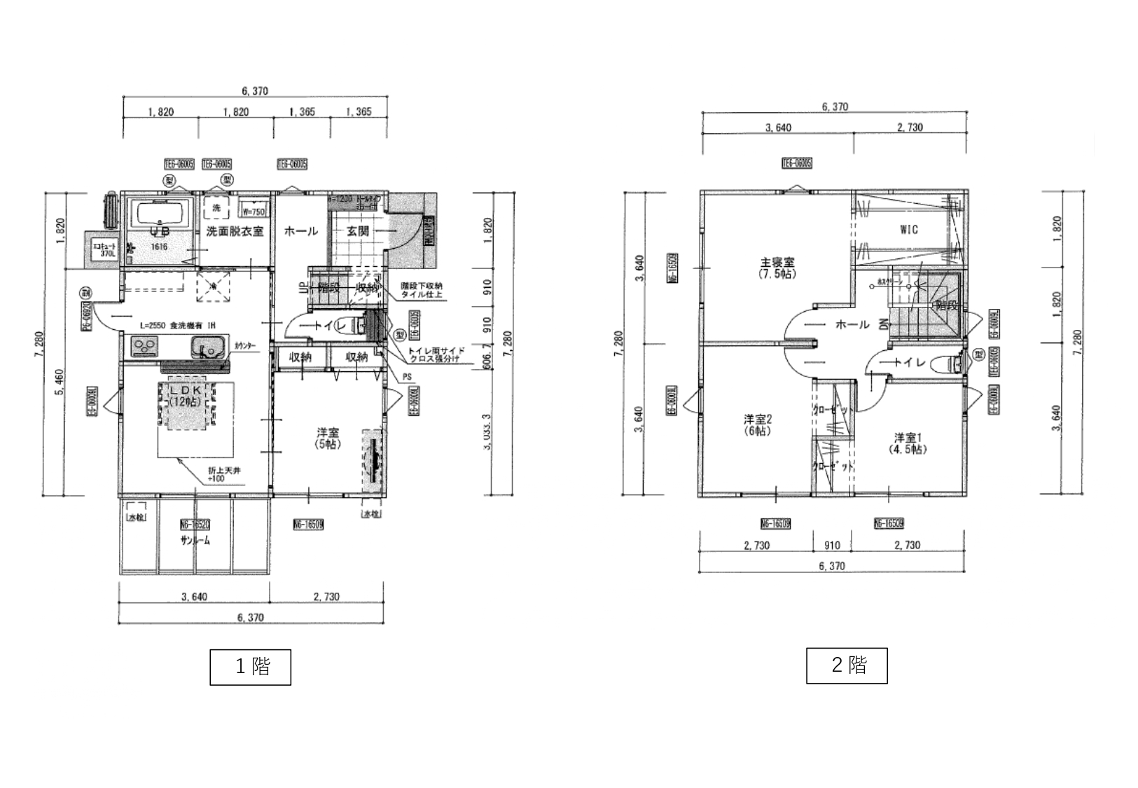
4LDK+サンルーム

八戸市城下3丁目

掲載内容と現況が異なる場合には
現況優先とさせて頂きます
問合せNo 3634
取引種目 売買建物 取引態様 仲介
価格 2,300万円 間取り 4LDK+サンルーム
所在地 八戸市城下3丁目
交通 八戸線「本八戸」駅から徒歩8分、八戸市営バス「デーリー東北新聞社前」バス停から徒歩7分
土地面積 130.58㎡/39.50坪 他、私道面積
建物構造 木造2階建 建物面積 92.74㎡/28.00坪(延床面積)
間取内訳 1F:LDK12帖、洋室5帖、サンルーム  2F:洋室7.5帖、洋室6帖、洋室4.5帖
接道状況 東側:幅員3.8mの公道に12.55m接道しています
築年月日 2015年(平成27年)10月28日 現況 居住中
引渡し時期 2025年12月以降予定 駐車場 3台程度
土地権利 所有権 地目 宅地
都市計画 市街化区域 用途地域 準工業地域
建ペイ率(%) 60 容積率(%) 200
ガス オール電化 トイレ 洋式水洗
学区(小) 八戸市立城下小学校 学区(中) 八戸市立第二中学校
備考 ※現在居住中ですので内見ご希望の際はお問合せ下さい
※タナカホーム施工住宅
※お引渡しは2025年12月以降予定
※図面と現況に相違がある場合は現況を優先します
※物置は付いてきません。
~おススメポイント~
〇建物状態良好♪ 〇オール電化♪ 〇太陽光蓄電池♪
~周辺環境~
〇イオンスタイル城下店まで徒歩3分(約191m)
〇セブンイレブン八戸城下4丁目店まで徒歩9分(約662m)
〇城下小/第二中エリア
※物件の詳細はお気軽にお問合せ下さい!
■ミライズ不動産はタナカグループホールディングスの一員です。グループ会社のタナカホーム、フジケンザイと共に安心して暮らせるお家探しをお手伝い致します!

一覧に戻る

青森県内の不動産探しは
ミライズ不動産にお任せください

TEL.0120-933-172

営業時間 / 9:00~17:30 
定休日 / 水曜・木曜・祝日

メールでの
お問い合わせはこちら